Business

Two new housing developments could bring thousands of newcomers to Boise Bench

READ MORE


Affording Boise: Homeownership

Soaring rents. Skyrocketing home prices. The double-digit rates of increase in the costs of Boise-area housing until 2022 have created increasingly urgent problems for low-income, working-class and even moderate-income Idahoans who need places to live. Affording Boise is a series of Idaho Statesman special reports on housing. This collection focuses on homeownership. A separate collection focuses on rental homes, including apartments.

Expand All

Hundreds of housing units and thousands of people could soon replace open agricultural land in the southeast corner of the Boise Bench.

Two proposals to build housing would shift the landscape in some of the last pieces of Bench farmland — an area now filled with green grass, grazing cattle and open air. Surrounded by housing in each direction, the open land would turn into buildings — lots of them.

The two side-by-side developments would be south of West Victory Road, just east of South Vista Avenue. The land is zoned A-1, for agriculture and as a holding zone until development happens. Boise’s land use map, which guides future development, designates the land for “mixed use,” which allows both residential and commercial buildings.

With potentially thousands of new neighbors, some residents in the area are worried about traffic and the height of the buildings, Vista Neighborhood Association President Kim Bentley said..

“I’m sure if you lived down the street and all of a sudden you were going to get about 2,000 new neighbors, traffic would be a concern to you also,” Bentley said by phone.

Here’s what we know:

1. Vista Point: 800 homes on 44 acres

The proposal on the east side of the farmland calls for 800 rental housing units ranging from studio to four-bedroom apartments, single-family detached homes and attached town houses, according to an application filed with the city of Boise.

The 170 buildings would take up the land south of West Victory Road and west of South Annett Avenue. The applicants are calling the project Vista Point.

This Victory Road property was put up for sale last year. The land includes 43.9 acres at 2521 W. Victory Road, north of the airport between Victory Road and the New York Canal.
This Victory Road property was put up for sale last year. The land includes 43.9 acres at 2521 W. Victory Road, north of the airport between Victory Road and the New York Canal. Sarah A. Miller smiller@idahostatesman.com

The application says the proposal is consistent with Boise’s comprehensive plan, compatible with surrounding uses, and adequately served by existing utilities and city services.

There are plans for a clubhouse, fitness center, outdoor swimming pool, playground, dog park, multiple sport courts, covered gathering spaces and multiple pocket parks.

“The building arrangement and site design create an attractive, urban-feeling landscape,” the application says. “... Vista Point provides needed and walkable housing near the Vista Avenue transit corridor and convenient access to nearby commercial areas and Interstate 84.”

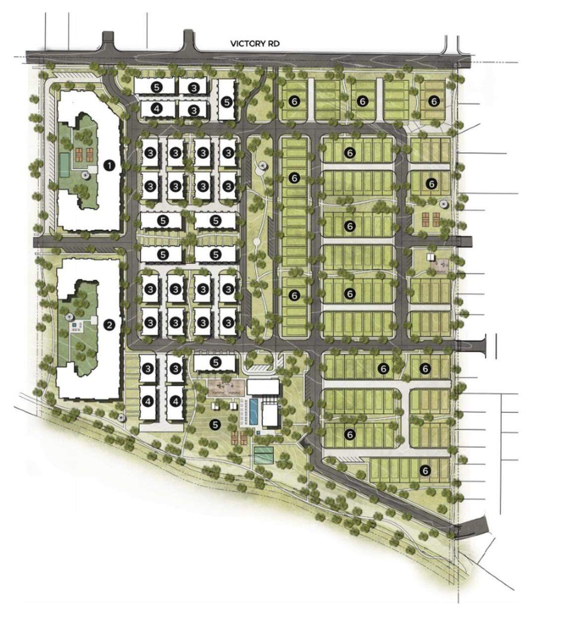
According to a map presented by Layton Construction to the Vista Neighborhood Association, the development would have two apartment buildings with 261 units and 264 units each, 80 fourplex townhouses, 15 fiveplex townhouses, 42 sixplex townhouses and 138 single-family homes.

This map shows a proposed 800-unit housing development east of South Vista Avenue and south of West Victory Road. Layton Construction has presented this map to the Vista Neighborhood Association but it hasn’t yet been submitted to the city of Boise.
This map shows a proposed 800-unit housing development east of South Vista Avenue and south of West Victory Road. Layton Construction has presented this map to the Vista Neighborhood Association but it hasn’t yet been submitted to the city of Boise. Contributed by Vista Neighborhood Association

The application doesn’t specify an address, but the parcel number, S1027212400, indicates the 43.9-acre location. It’s north of the Boise Airport between Victory Road and the New York Canal. The land was put up for sale last summer by the Simunich family, which is still listed as the owner, according to Ada County records.

The Vista Point application requests a height exception for the apartment buildings on the west side of the property, which could allow buildings as tall as 55 feet instead of 45 feet. The application doesn’t say how tall the buildings would be, but 55 feet is typically enough for five stories.

Shorter buildings with less density are planned on the east side, which rubs against existing homes. The west side abuts the Victory Road Apartments proposal.

Alex Drecksel and Rock Shill of Layton Construction, a Utah-based company, are listed as the applicants. EPC Boise Victory Road LLC is listed as the owner, with an Ohio address. The owner’s address is the same as Welltower, a real estate investment trust. Multiple attempts to reach Welltower and Layton Construction for comment were unsuccessful.

The two companies are also partnering on a housing development at 8373 W. Victory Road in West Boise, which initially received pushback from neighbors. The proposal for 301 apartments and townhouses recently received City Council approval.

2. Victory Road Apartments on 18 acres

The other proposal — named Victory Road Apartments — calls for “a multifamily development on approximately 18 acres of land” at 2521 W. Victory Road, according to its application. The number of living units is not known.

The application lists Kristen McNeill, a lawyer in Boise’s Givens Pursley law firm, as the only applicant.

Bentley said a real estate investment firm, Stonehill, is behind the project and has held neighborhood meetings to discuss its plans.

CEO Ari Steinberg said in an email to the Idaho Statesman that Stonehill is “still working on plans and receiving input.” He declined to comment further.

Steinberg splits his time between Las Vegas and Denver, according to his bio on the company’s website.

This stretch of Victory Road has two lanes, one in each direction and a sidewalk only on the north side of the street. Both sides have dirt shoulders. Bentley doesn’t think it’s equipped to adequately handle more cars.

Adjacent to the south side of the properties, homes on West Sunrise Rim Road sit perched over the open land. The view from those backyards would change if buildings are built.

Help for Boise’s housing shortage

The units would increase Boise’s housing supply, which experts often say is the key to alleviating rising housing costs. The median price of a single-family Ada County home in March was a record $575,000, according to the Intermountain Multiple Listing Service. The median rent in Boise in March was $1,259, according to Apartment List.

Vista Point’s application says the developer is applying for an affordable housing bonus. If the new development includes affordable units or is in designated locations, the developer can build more units, taller buildings or less than the minimum number of parking spaces typically allowed by the city.

Bentley cited other nearby apartment complexes when saying that her neighborhood has contributed its fair share of land for housing.

“I know there’s a need for housing in Boise,” Bentley said, “but Vista has been inundated.”

This story was originally published April 15, 2022 at 4:00 AM.

Follow More of Our Reporting on Idaho Statesman Subscriber Exclusives

Paul Schwedelson
Idaho Statesman
Paul Schwedelson is the growth and development reporter at the Idaho Statesman. If you like seeing stories like this, please consider supporting us with a subscription. Support my work with a digital subscription
Get unlimited digital access
#ReadLocal

Try 1 month for $1

CLAIM OFFER

Affording Boise: Homeownership

Soaring rents. Skyrocketing home prices. The double-digit rates of increase in the costs of Boise-area housing until 2022 have created increasingly urgent problems for low-income, working-class and even moderate-income Idahoans who need places to live. Affording Boise is a series of Idaho Statesman special reports on housing. This collection focuses on homeownership. A separate collection focuses on rental homes, including apartments.