Business

A new car showroom. A grocery store. Townhouses. What’s coming to your neighborhood

The latest proposed developments, other construction projects and new businesses around the Treasure Valley:

Boise

Jim and Gayle Chalfant are seeking a permit to demolish the two-story Tullis Building at 516 W. Franklln St., built in 1972, and replace it with a single-family residence.

The Tullis Building at 516 W. Franklin St., built in 1972, would be torn down and replaced with a single-family residence, under a request by Jim and Gayle Chalfant.
The Tullis Building at 516 W. Franklin St., built in 1972, would be torn down and replaced with a single-family residence, under a request by Jim and Gayle Chalfant. From a development application to the city of Boise

SI Construction of Nampa is seeking a permit to build 10 townhouses in the 6300 block of West Tierra Lane, between North Curtis and North Liberty streets and north of West Franklin Road. The two-story houses would have 985 square feet on the ground floor and 615 square feet on the second floor, with three bedrooms, 2.5 bathrooms and attached garages.

A record store, Modern Sounds Vinyl and Music, has opened on the Boise Bench at 556 S. Vista Ave. The store offers used and new records, and is open from 11 a.m. to 7 p.m. The store opening was first reported by Boise Weekly.

Larry H. Miller Chrysler Jeep Dodge Ram is seeking a permit to demolish an existing showroom and build a new one at 222 S. Auto Dr. The two-story building would have 8,180 square feet on the ground floor and 640 square feet on the second floor. The company also plans to remodel existing interior spaces and modify parking around the new construction site.

Maverik, the convenience store chain, has opened a new store at 10577 W. Fairview Ave.

Meridian

The planned WinCo Foods at the intersection of Chinden Boulevard and Linder Road is moving forward. The Boise-based grocery chain applied for a permit to build its 80,900-square-foot store. It would be open 24 hours, seven days a week. It would have 423 parking stalls.

Boise Hunter Homes has applied to build a 31-acre subdivision at the northwest corner of Eagle and Lake Hazel roads. Sky Mesa Highlands would include 75 houses with a density of about 4 units per acre.

The Conger Group of Boise has applied to rezone and annex 13 acres at 3610 N. Linder Road for a subdivision called Edington Commons. The subdivision would include 92 houses, a half-acre park and a playground.

Ameriprise Financial, a Minneapolis-based financial services chain, is building an office at 413 5th Ave. in Meridian, west of Meridian Road and south of Franklin Boulevard, according to a permit filed with the city.

Caldwell

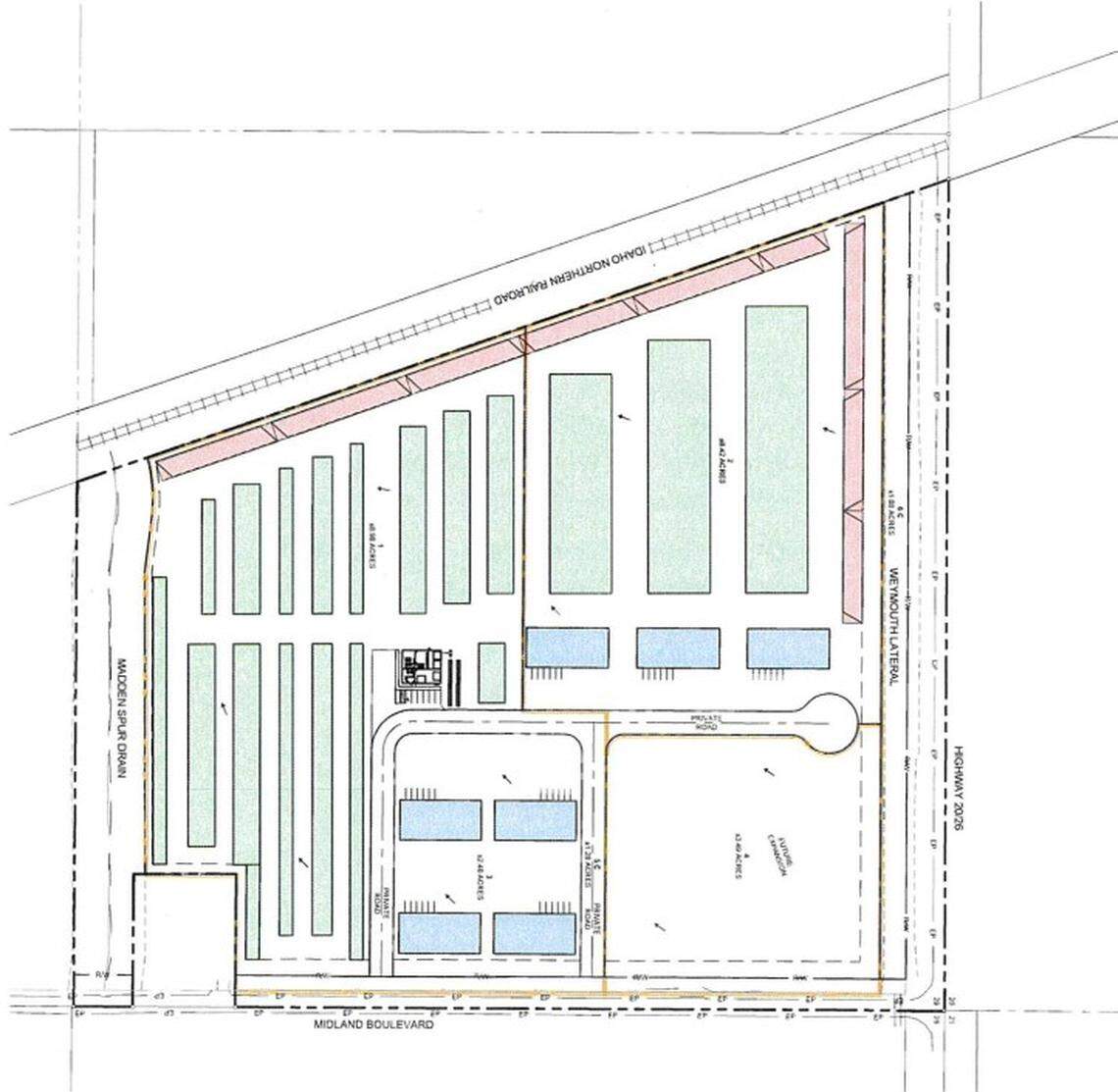
James Gibson of Eagle has applied to annex a 30-acre property off 19933 Midland Boulevard, just west of Highway 20/26. He is also requesting a special use permit to build a self-storage business on the site, a contractor yard with small commercial and light industrial buildings, and a storage yard. The Caldwell Planning and Zoning Commission will hold a public hearing at 7 p.m. on Tuesday, April 14, in the Caldwell Police Department, 110 S. 5th Ave.

James Gibson of Eagle has applied to build a self-storage business at the southwest intersection of Highway 20/26 and Midland Boulevard.
James Gibson of Eagle has applied to build a self-storage business at the southwest intersection of Highway 20/26 and Midland Boulevard. City of Caldwell

Reed and Jackie Taylor, who owned and operated Taylor Music from 1968 to 1992 in Caldwell, applied to rezone a 2-acre lot at 0 Aviation Way, near the Flying J truck stop and the High Country Plastics manufacturing business. They hope to lease the land and apply for a special use permit to open a truck-driving school there.

The Caldwell Planning and Zoning Commission will hold a public hearing at 7 p.m. on Tuesday, April 14, in the Caldwell Police Department, 110 S. 5th Ave.

Greg Ferney, a Boise lawyer, applied to build a self-storage business on a 6-acre lot near the northwest intersection of Ustick and Middleton Roads, south of Interstate 84.

The Caldwell Planning and Zoning Commission will hold a public hearing at 7 p.m. on Tuesday, April 14, in the Caldwell Police Department, 110 S. 5th Ave.

Nampa

Dean Anderson of Meridian applied for a conditional use permit to build 96 luxury apartments on a 4-acre lot at 1414 East Karcher Road, west of Franklin Boulevard. The development would include 200 parking spots.

The Franklin Lofts would include 96 luxury apartments and 200 parking spots.
The Franklin Lofts would include 96 luxury apartments and 200 parking spots. City of Nampa

Ron Kennedy of Eagle is requested a zoning map amendment from single-family residential to multifamily residential at 916 E. Colorado Ave. Kennedy hopes to build apartments on the site.

James Fuhrman of Meridian applied to annex and rezone a 10-acre parcel at the intersection of Victory Road and Picard Lane to build a future industrial business.

Notable

Boise Mayor Lauren McLean nominated three commissioners for Boise’s Planning and Zoning Commission: Chris Blanchard, Ashley Ford-Squyers and Jennifer Mohr. The City Council approved the nominations Tuesday, Feb. 25.

McLean also proposed a policy to stop bringing any new business before a city commission after 9:30 p.m. In the past, evening meetings have gone later than midnight on occasion. McLean would have the commission move any remaining business, including deliberation or additional testimony, to the next scheduled commission hearing date.

McLean said she plans to meet with members of the city’s boards and commissions in March and carry out changes as soon as April.

This story was originally published February 26, 2020 at 4:00 AM.

Kate Talerico
Idaho Statesman
Kate reports on growth, development and West Ada and Canyon County for the Idaho Statesman. She previously wrote for the Louisville Courier-Journal, the Center for Investigative Reporting and the Providence Business News. She has been published in The Atlantic and BuzzFeed News. Kate graduated from Brown University with a degree in urban studies.
John Sowell
Idaho Statesman
Reporter John Sowell has worked for the Statesman since 2013. He covers business and growth issues. He grew up in Emmett and graduated from the University of Oregon. If you like seeing stories like this, please consider supporting our work with a digital subscription to the Idaho Statesman.
Get unlimited digital access
#ReadLocal

Try 1 month for $1

CLAIM OFFER