Business

Apartments. Houses. A Boise education center Micron is helping to build. Coming near you

The latest proposed developments, other construction projects and new businesses around Idaho’s Treasure Valley:

Caldwell

A developer, deChase Miksis Development, has broken ground on a five-story building with 142 apartments in downtown Caldwell.

DeChase Miksis Development broke ground on its  5-story, mixed-use apartment building with retail on the ground floor and apartments above.
DeChase Miksis Development broke ground on its 5-story, mixed-use apartment building with retail on the ground floor and apartments above. City of Caldwell

The apartment building will have surface parking and residential living above. The property will have amenity spaces and about 7,500 square feet of retail space above, a news release said.

The building will be located on the corner of Main and 6th streets.

Boise

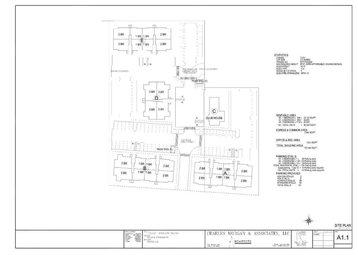
Brandon McDougald met with city planners to discuss a proposal to build 112 apartments in a 46-foot-high building at 5522 W. Franklin St.

The building would have 48 one-bedroom units, 40 two-bedrooms and 24 one-bedrooms.

A site plan shows the layout for 112 apartments proposed at 5522 W. Franklin St.
A site plan shows the layout for 112 apartments proposed at 5522 W. Franklin St. Courtesy of City of Boise

A developer wants to convert an assisted-living center on the Boise Bench into an apartment building.

Erstad Architects sketched plans in advance of a neighborhood meeting to discuss the proposed renovation of the Arbor Village at Hillcrest at 1093 S. Hilton St., south of Cassia Street and west of Orchard Street.

The plans call for combining some of the building’s 115 units, resulting in 77 apartments.

Erstad’s filings with the city of Boise did not identify the developer.

Sterling Homes, Inc. is seeking a permit for the final plat of 18 single-family homes on about four acres at 9435 W. Overland Road.

The Wassmuth Center for Human Rights has begun construction of the Wassmuth Education Center, a two-story building at the Idaho Anne Frank Human Rights Memorial along the Boise River downtown.

The Micron Foundation donated $250,000 for the building and will help promote the center’s programs, the Wassmuth Center said in a news release.

“Following the vandalism of the Anne Frank Memorial in December 2020, the Micron Foundation and the Wassmuth Center for Human Rights united and spoke out against hate crimes in the community,” Wassmuth Center Executive Director Dan Prinzing said in the release. “This partnership is built on our aligned commitment to promote respect for human dignity and diversity through education and foster individual responsibility to work for peace and justice.”

A rendering of the future two-story Wassmuth Education Center, expected to be completed by fall 2022.
A rendering of the future two-story Wassmuth Education Center, expected to be completed by fall 2022. Courtesy of Wassmuth Center

The Idaho Outdoor Fieldhouse is seeking a building permit and a permit for its equipment facility.

The fieldhouse, at 3179 E. Barber Valley Drive, is being designed for veterans and disabled athletes.

A rendering shows the planned fitness center at the future Idaho Outdoor Fieldhouse. The headquarters is being designed to assist veterans and athletes with disabilities.
A rendering shows the planned fitness center at the future Idaho Outdoor Fieldhouse. The headquarters is being designed to assist veterans and athletes with disabilities. Provided by J.A. and Kathryn Albertson Family Foundation

Sawtooth Development hopes to build a business center at 8710 S. Pleasant Valley Road to be used for light manufacturing, warehouse storage and distribution.

The company is requesting about 80 acres to be annexed into Boise. Sawtooth Development wants both parcels to change from a rural preservation zone to a light industrial zone in order to create the Boise Airport Business Center.

One of the first proposed buildings is planned to be leased by St. Luke’s Health System for warehousing and distribution of medical supplies throughout Idaho.

Papa Pita, a West Jordan, Utah, company, is seeking a permit to build two industrial buildings at 8863 S. Federal Way.

The two buildings would be available for lease to multiple tenants. The intended use is for flexible office warehouse space.

A diagram shows a warehouse proposed at 8863 S. Federal Way. It’s planned for office warehouse space.
A diagram shows a warehouse proposed at 8863 S. Federal Way. It’s planned for office warehouse space. Courtesy of AE Urbia Architects and Engineers

The Ada County Highway District applied for design review of a $7.6 million project to improve State Street for several blocks downtown.

The plan calls for installing new pedestrian ramps, replacing asphalt pavement with concrete pavement, building accessible pedestrian signals that include buttons, installing new traffic signals, and adding bioretention curb extensions.

The work would be done on State Street from 2nd to 16th streets and on 9th Street between Bannock and State streets.

In a Dec. 8 presentation to the Ada County Highway District board, Senior Transportation Planner Brooke Green explained three concepts to renovate Collister Drive, which stems off of State Street, in northeast Boise.

The possible designs featured the creation of sidewalks, bike lanes and multi-use pathways. The concepts were scheduled to be presented to the public during the second Collister virtual open house from 3:30 to 5:30 p.m. Thursday, Dec. 16. Go to achd.idaho.gov and search for “Collister Drive Study.”

A diagram shows a potential renovation to Collister Drive, including a sidewalk and bike lane.
A diagram shows a potential renovation to Collister Drive, including a sidewalk and bike lane. Courtesy of ACHD

David Kim applied to open a Taekwondo martial arts studio at 301 W. Parkcenter Blvd.

The current building was previously a U.S. Bank building and the plan is to convert the space.

T & G Hams LLC has leased 2,654 square feet of retail space in a former Baja Fresh Mexican Grill restaurant at 992 N. Milwaukee St. Cushman & Wakefield Pacific reports.

Advanced Spectrum Fitness leased 1,884 square feet in the Family Center at Federal Way, 3548 S. Federal Way. Kristen Keen of Meridian is listed as a director in the company’s registration with the Idaho Secretary of State’s Office.

Columbia Physical Therapy leased 1,988 square feet in Victory Plaza, 7421 W. Victory Road.

Meridian

Dev Co. LLC seeks to build 83 homes on 35.7 acres on Eagle Road, south of Lake Hazel Road.

The Skybreak Subdivision would be located at 3487 E. Adler Hoff Lane and 7020 Eagle Road.

The Meridian City Council is scheduled to hear the proposal at 4:30 p.m. Tuesday, Jan. 4, in council chambers.

Challenger Development and Endurance Holdings LLC seek to build 76 homes on nearly 17 acres.

The Southridge South subdivision would be located on the south side of West Overland Road and a quarter mile east of South Ten Mile Road.

The Meridian City Council is scheduled to hear the proposal at 4:30 p.m. Tuesday, Jan. 4, in council chambers.

Challenger Development and Endurance Holdings LLC seek to build 76 homes.
Challenger Development and Endurance Holdings LLC seek to build 76 homes. City of Meridian

Brighton Corp. seeks to build nine storage buildings and two storage condos on Franklin Road.

The Ten Mile Storage buildings and Ten Mile Storage Condos would be located at 2283 Franklin Road, near the intersection of Eagle Road and Franklin.

Based in Pennsylvania, 84 Lumber has opened a 33,000-square-foot store at 1220 W. Franklin Road in Meridian. It’s the company’s first Idaho store
Based in Pennsylvania, 84 Lumber has opened a 33,000-square-foot store at 1220 W. Franklin Road in Meridian. It’s the company’s first Idaho store Provided by 84 Lumber

84 Lumber has opened a 33,000-square-foot building-materials store at 1220 W. Franklin Road.

It’s the company’s first Idaho store, with 15 employees hired so far. The company plans to add more workers in 2022.

The company name comes from its headquarters town, Eighty Four, Pennsylvania, an unincorporated village 20 miles south of Pittsburgh.

84 Lumber, which says it’s the largest privately owned building materials supplier in the nation, operates more than 250 stores in 30 states.

An eye care office, Paramount Eyecare, is proposed at 4642 Penngrove Way.

The building would be 3,316 square feet, according to the application submitted by Jessica Petty, of 12.15 Design.

Garden City

For those hoping for movable tiny homes in Garden City, a date is set for the next hearing that could make that happen.

The Garden City Design Review Board on Feb. 22 expects to take up a code change proposed by developer Hannah Ball that seeks to legalize movable tiny homes. Movable tiny homes are typically smaller than 400 square feet and built with traditional materials like wood. At the moment, they’re allowed only in RV parks on Ada County land.

Ball advocated for the change when running for Garden City mayor in the November election, which she lost to incumbent John Evans.

Developer Hannah Ball has this tiny home on display in Garden City. Ball believes that tiny homes are an affordable housing option that should be available in Garden City; however, they are now illegal to reside in.
Developer Hannah Ball has this tiny home on display in Garden City. Ball believes that tiny homes are an affordable housing option that should be available in Garden City; however, they are now illegal to reside in. Sarah A. Miller smiller@idahostatesman.com

Around Idaho

Six state-owned properties near Payette Lake, including two on the lakefront, have sold for a whopping price: an average of $3.7 million dollars per acre.

The parcels, covering 2.3 acres near the Pilgrim Cove Subdivision in McCall sold, for about $5 million over appraised value at an auction held by the Idaho Department of Lands in Eagle, The Star-News in McCall reports. The auction earned $8.4 million for the six vacant lots, more than 2½ times their appraised value of $3.4 million.

The two properties fronting the lake sold for about $5.8 million to a company owned by a Utah family, said Sharla Arledge, a Lands Department spokesperson. A third lot sold to a bidder from Arizona, and the three remaining lots sold to Boise residents, Arledge said. The names of purchasers were not immediately released.

The $8.4 million will help fund public education.

Four unleased endowment land cottage sites remain in the McCall area after last week’s auction, all on Cougar Island in Payette Lake. They are set for auction within five years.

The auction was not related to the Payette Endowment Lands Strategy, a plan adopted earlier this year to dispose of underperforming state endowment lands around McCall. The strategy includes 56 acres in Pilgrim Cove that are known as the “White Pine parcel,” which the plan designates for lease or auction within five to 10 years.

Schweitzer, the ski resort in the Selkirk Mountains of Idaho’s Panhandle, has purchased and renovated a former assisted living building in nearby Sandpoint to be used as affordable housing for winter and summer seasonal workers.

“In an incredibly challenging real estate market, we were glad we could acquire this property and help ease some of the burden facing our employees,” President and CEO Tom Chasse said in a news release.

The building is named Hemlock House.
The building is named Hemlock House. Schweitzer

The building has eight bedrooms, a communal kitchen, a living room, a rec room, four shower rooms and laundry facilities. Residents must sign agreements to abide by house rules and will be expected to remain in good standing with their housemates, employer and neighbors.

A bedroom in Hemlock House, the former assisted-living building in Sandpoint purchased and remodeled in 2021 by Schweitzer Mountain for use as affordable housing for winter and summer seasonal workers. Provided by Schweitzer.
A bedroom in Hemlock House, the former assisted-living building in Sandpoint purchased and remodeled in 2021 by Schweitzer Mountain for use as affordable housing for winter and summer seasonal workers. Provided by Schweitzer. Schweitzer

Schweitzer said it expects to announce more affordable-housing projects soon.

Read Next
Read Next
Read Next
Read Next
Read Next

This story was originally published December 15, 2021 at 4:00 AM.

Paul Schwedelson
Idaho Statesman
Paul Schwedelson is the growth and development reporter at the Idaho Statesman. If you like seeing stories like this, please consider supporting us with a subscription. Support my work with a digital subscription
Rachel Spacek
Idaho Statesman
Rachel Spacek is a former reporter covering Meridian, Eagle, Star and Canyon city and county governments for the Idaho Statesman. 
Get unlimited digital access
#ReadLocal

Try 1 month for $1

CLAIM OFFER