Business

More apartments. Houses from TV’s Boise Boys. Stores, a brewery. What’s coming near you

The latest proposed developments, other construction projects and new businesses around the Treasure Valley:

Boise

The Boise City Council will consider American Pacific Advisors’ plan to build an 85-unit apartment complex at 8306 W. State St.

The project, called Limelight Village, would be built on 2.3 acres. It would consist of four three-story buildings. Sixty-five units would be studios and one-bedroom apartments. Twenty would be two-bedroom units.

The Limelight Village apartments off State Street in West Boise would include 85 apartments spread among four buildings. This rendering shows the view along North Roe Street.
The Limelight Village apartments off State Street in West Boise would include 85 apartments spread among four buildings. This rendering shows the view along North Roe Street. Provided by American Pacific Advisors

Developer Scott McCormack told the Statesman in February that rents would average about $1,200 monthly.

The proposal would require the Boise City Council to approve a rezone from R-1A (single-family residential with 2.1 units per acre) to R-3D (multifamily residential with design review, allowing for 43.5 units per acre).

Looking west, the Limelight Village would be built in the field at left. The Retreat at Sillvercloud apartments are in the background, with the Roe Street Townhomes at right.
Looking west, the Limelight Village would be built in the field at left. The Retreat at Sillvercloud apartments are in the background, with the Roe Street Townhomes at right. John Sowell jsowell@idahostatesman.com

The City Council plans a hearing on the project at 6 p.m. Tuesday, July 28, at Boise City Hall. Remote testimony will be taken via Zoom, accessible at www.cityofboise.org/virtual-meetings.

Timber and Love, the company owned by HGTV’s Boise Boys, is seeking a conditional use permit to build 12 single-family homes at 5160 W. Wylie Lane, located off State Street.

The project would be built on a 1.5 acre parcel that now houses a manufacturing shop. Each house would be about 2,400 square feet and would have a two-car garage.

The applicant is requesting a waiver of sidewalk, curb and gutter requirements. Boise’s Planning and Zoning Commission plans a public hearing on the permit at 6 p.m. Monday, Aug. 3, at Boise City Hall. Remote testimony will be taken via Zoom, accessible at www.cityofboise.org/virtual-meetings.

John Day of SU Architecture is seeking a rezone of a half acre at 3047 S. Bown Way to build a 6,700 square foot multitenant retail building.

Proposed tenants include a restaurants and several retailers, according to filings on the project.

Day seeks to rezone the site from C-1D (neighborhood commercial with design review) to PCD/DA (pedestrian commercial with design review and development agreement. Day also requested a reduction of the required 23 parking spaces to 14, a request neighbors living near the project are appealing.

The Boise City Council plans a hearing at 6 p.m. Tuesday, July 28, at Boise City Hall. Remote testimony will be taken via Zoom, accessible at www.cityofboise.org/virtual-meetings.

Peace Valley Charter School is seeking a permit to add a modular classroom at its campus at 1845 S. Federal Way.The room would have 1,792 square feet.

St. Vincent de Paul is seeking an occupancy permit to open a used furniture store, Broadway North, 2110 S. Broadway Ave.

The store will devote 5,000 square feet to the sales floor with another 5,4000 square feet used for storage, office space and an eBay online store for higher-value second-hand goods.

Western Aircraft, which maintains and repairs jets next to the Boise Airport, says it is undertaking its second major expansion in six years: a 93,000-square-foot addition that includes hangar, back shop and office space. New jobs will come, too.

“From technicians to back-office support, Western Aircraft is creating more than 130 new high-paying jobs to meet their customer’s diverse and growing needs, said Tom Kealey, director of the Idaho Department of Commerce, in a news release.

The company expects to finish the $17 million expansion in the first quarter of 2021.

In 2014, Western Aircraft, 4300 S. Kennedy St., completed a $4.7 million expansion to its 18-acre campus adding two new buildings, specialized tooling and other improvements.

Star

Chris Todd of Green Mountain Resources and Planning seeks a rezone of a 10-acre property at 864 N. Star Road, north of the Star Elementary School, to allow for a 67-house subdivision called Inspiration Homes.

Meridian

Loose Screw Beer Co. applied for a conditional use permit to build a 2,200-square-foot brewery with a tasting room and retail showroom at 1511 W. McMillan Road, near the intersection of Linder and McMillan roads.

Customers socialize at Loose Screw Beer Co. in Garden City.
Customers socialize at Loose Screw Beer Co. in Garden City. Loose Screw Beer Co.

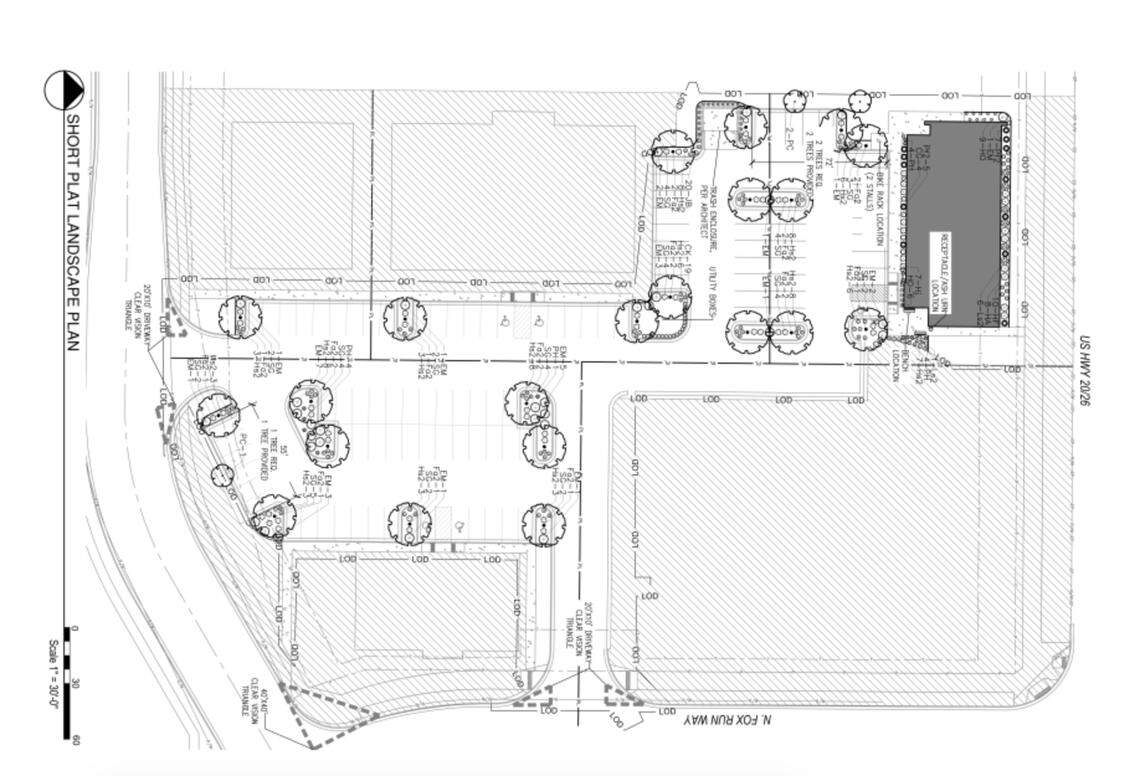
Brighton Corp. applied to develop a 4-acre parcel at 6357 N. Fox Run Way with four commercial building lots. The plan does not include specific building designs.

Brighton Corp. has plans to develop four commercial lots at 6357 N. Fox Run Way, between Meridian and Linder Road, on the south side of Chinden Boulevard.
Brighton Corp. has plans to develop four commercial lots at 6357 N. Fox Run Way, between Meridian and Linder Road, on the south side of Chinden Boulevard. Brighton Corp.

Quest Diagnostics, a national clinical laboratory company, is moving into an existing 1,498-square-foot office space at 3355 Louise Drive, Suite 150.

Teriyaki Madness, a national chain, has plans to open a restaurant at 1653 Island Green Drive, near the northwest corner of Chinden Boulevard and Linder Road.

Eagle

The Eagle City Council passed a zoning amendment that will prohibit apartments except in areas zoned for mixed use or central business districts. Apartments will be allowed only with a conditional use permit.

Previously, apartments were allowed in residential areas zoned for higher densities.

The amendment also paves the way for attached single-family units, or townhouses, to be built in certain city zones.

Around Idaho

The Cascade City Council has approved a development that would greatly expand Cascade, a city of about 1,000 people along Lake Cascade about 80 miles north of Boise.

The Star-News in McCall reports that the developers, Cascade residents Phil and Josh Davis of Cascade River LLC, plan 443 homes on 121 acres of grazing land along the North Fork of the Payette River northeast of Cascade Airport. The council approved annexing the land.

The subdivision, named the River District, would have 135 estate houses, nine smaller houses, 43 townhouses and, 48 residential fourplexes and four apartment buildings with 16 units each. Access would come from the east side of Idaho 55, where the developers would build a roundabout.

The plans also include 11 commercial lots close to the highway.

The subdivision would provide much-needed homes for about 130 employees of the planned Midas Gold mine in Valley County, a mine representative said last year. Midas is seeking to mine gold and antimony in Stibnite, a historic mining district about 50 miles northeast of Cascade. Midas has said it plans to invest $1 billion and create 1,000 jobs.

Kate Talerico
Idaho Statesman
Kate reports on growth, development and West Ada and Canyon County for the Idaho Statesman. She previously wrote for the Louisville Courier-Journal, the Center for Investigative Reporting and the Providence Business News. She has been published in The Atlantic and BuzzFeed News. Kate graduated from Brown University with a degree in urban studies.
Hayley Harding
Idaho Statesman
Hayley covers local government for the Idaho Statesman with a primary focus on Boise and Ada County. Her political reporting won first place in the 2019 Idaho Press Club awards. Previously, she worked for the Salisbury Daily Times, the Hartford Courant, the Denver Post and McClatchy’s D.C. bureau. Hayley graduated from Ohio University with degrees in journalism and political science.If you like seeing stories like this, please consider supporting our work with a digital subscription to the Idaho Statesman.
Get unlimited digital access
#ReadLocal

Try 1 month for $1

CLAIM OFFER