Business

A new Costco. Hundreds of homes. What’s coming near you. Plus: Bieter’s latest gig

The latest proposed developments, other construction projects and new businesses around the Treasure Valley:

Eagle

Former Boise State athletes Jerron and Margie Porchia have plans to build a mixed-use development with 11,000 square feet of restaurant space, 17,000 square feet of retail and office space, and 10,000 square feet of residential housing on a 2.6-acre parcel they own on North Horseshoe Bend Road between Floating Feather and Hill roads.

Margie and Jerron Porchia met at Boise State University as college athletes and later married. They are developing a 2.6-acre parcel they own on Horseshoe Bend Road, between Floatng Feather and Hill roads in Eagle.
Margie and Jerron Porchia met at Boise State University as college athletes and later married. They are developing a 2.6-acre parcel they own on Horseshoe Bend Road, between Floatng Feather and Hill roads in Eagle. Katrina Thompson

The development, called Stadium View Center, would also include a surface parking lot.

Stadium View Center would include retail, restaurant, and office space, as well as four 1,000 square-foot homes, two single-family homes each 2,000 square feet and three 1,250 square-foot townhomes.
Stadium View Center would include retail, restaurant, and office space, as well as four 1,000 square-foot homes, two single-family homes each 2,000 square feet and three 1,250 square-foot townhomes. neUdesign Architecture

Boise

The Boise Airport has halted new construction “until we are able to assess the impact of the pandemic,” spokesman Sean Briggs told the Statesman in an email.

That means that an employee parking garage near the corner of Wright and Owyhee streets, set to begin construction later this year, will be shelved.

The Boise Airport has been working to complete several expansions in the next few years. A planned employee parking lot, bottom right, will be delayed because of the sharp decline in air traffic caused by the coronavirus.
The Boise Airport has been working to complete several expansions in the next few years. A planned employee parking lot, bottom right, will be delayed because of the sharp decline in air traffic caused by the coronavirus. Boise Airport

The $16 million set aside for the project will remain in the airport’s cash reserves, Briggs said. That money may be used to pay for airport operating expenses until the end of the downturn.

“The airport expansion projects were based upon demand,” Briggs said. “With that demand evaporated, and uncertainty around when the economy and air travel will bounce back, future airport development project timelines and sequencing could be affected.”

The airport is preparing a full review of its capital expansion plan and how it intends to use funds from the $2 trillion economic relief act Congress passed, he said. The way the garage was originally bid would not have made it eligible for reimbursement under the relief law.

CBH Homes is seeking a permit to build 12 townhouses in three buildings at 11386 W. Knightsbridge Court, north of West Fairview Avenue and west of North Five Mile Road.

Each unit would have about 2,000 gross square feet. The two-story buildings would have rear-entry two-car garages.

Harding Homes has applied for permits to build 10 homes in the 1600 block of West Cyrus Street, south of West Victory Road. The two-story homes, with three bedrooms and 2.5 bathrooms, would have between 2,200 and 2,300 square feet each.

Barber Valley Urgent Care has received a permit to build a 5,375-square-foot building for medical care and a family practice at 3077 E. Barber Valley Drive. The estimated cost is $1.4 million, according to BuildZoom.

Meridian

A building permit has been requested for the planned Costco store at 3403 Chinden Blvd, so construction is likely to begin soon.

The work, which is estimated to cost $2.1 million, will include the building shell, interior signage, sprinkler systems, plumbing, and lighting systems, according to BuildZoom.

Baron Properties, a multifamily housing property developer based in Denver, Colorado, applied to rezone 22 acres at the northeast corner of N. Black Cat Road and West Chidden Boulevard for a 195-unit multifamily development called Modern Craftsman. The development would include townhomes and detached single-family rental units. The project is targeted at millennials and Baby Boomers looking to downsize, according to the development application.

The Modern Craftsman development would include 195 housing units targeted at millennials and Baby Boomers, according to Baron Properties’ development proposal.
The Modern Craftsman development would include 195 housing units targeted at millennials and Baby Boomers, according to Baron Properties’ development proposal. Baron Properties
The entrance to the Modern Craftsman subdivision would feature these minimalist columns and landscaping, as shown in a rendering of he proposed development.
The entrance to the Modern Craftsman subdivision would feature these minimalist columns and landscaping, as shown in a rendering of he proposed development. Baron Properties
Renderings of a two-bedroom unit within the Modren Craftsman development.
Renderings of a two-bedroom unit within the Modren Craftsman development. Baron Properties
A rendering of the clubhouse at the proposed Modern Craftsman development.
A rendering of the clubhouse at the proposed Modern Craftsman development. Baron Properties

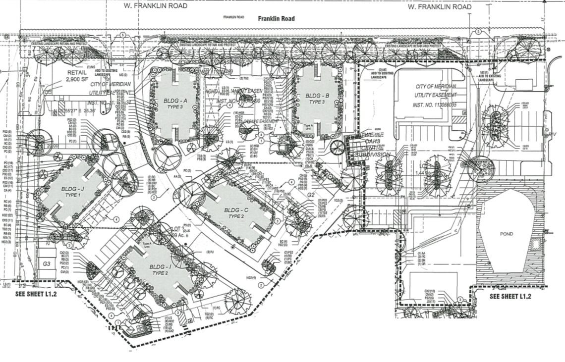
Jim Jewett of Eagle has applied to annex 7 acres for an apartment complex with eight buildings called the Villas at 12 Oaks East, an extension of the current 12 Oaks at Ten Mile development, located near the intersection of Linder and West Franklin roads. The complex would include 64 two- and three-bedroom units. It would also feature a bike path.

The Villas at 12 Oaks East would be a garden-style apartment complex, with apartments oriented away from the street and looking out over parking lots. The apartment style has come to be common in Meridian.
The Villas at 12 Oaks East would be a garden-style apartment complex, with apartments oriented away from the street and looking out over parking lots. The apartment style has come to be common in Meridian. Jim Jewett
An architect’s drawing of a side elevation of one of the proposed Twelve Oaks apartment buildings.
An architect’s drawing of a side elevation of one of the proposed Twelve Oaks apartment buildings. Jim Jewett

Pinnacle Land Development LLC of Scottsdale, Arizona, wants to annex 15 acres of land at the northeast corner of Black Cat and McMillan roads for a new subdivision with 65 single-family homes called Brody Square.

Sam Johnson of Fairbourne Development LLC in Meridian applied to annex 10.5 acres at 5875 S. Eagle Road, between Amity and Lake Hazel roads. The developer hopes to build a 42-house subdivision called McKay Farm. The property is in unincorporated Ada County and zoned as rural-urban transition.

Rob and Carmen Bienapfl of Meridian opened up a new bar called the Good Apple Taphouse at 1728 E. McMillan Road, at the northeast corner of Locust Grove and McMillan Roads.

Arthur Berry applied to rezone land at 1450 E. Franklin Road, just west of North Locust Grove Road, to allow a future developer to build six commercial properties on the 13-acre parcel, to be called Midgrove Plaza.

The Compass Charter School seeks to annex 5 acres on the north side of West Franklin Road and east of Black Cat Road to add additional parking and recreational fields.

Under Armour is opening a store at 1190 Eagle Road, next to the Cost Plus World Market, according to a building permit filed with the city.

Garden City

The city’s design committee recommended amending Garden City’s flood hazard ordinance to align it with new standards from the Federal Emergency Management Agency.

The amended ordinance alters the map for Garden City’s share of the 100-year floodplain. The city would start requiring that new construction be at least 2 feet above flood level.

Hannah Ball, a Garden City developer, testified that changes to the map could hurt people who live in mobile homes in the affected area.

“My concern would be every trailer park is essentially in the new flood plain,” Ball said. “We’re saying that if a driveway is poured, the site needs to conform to new standards or there’s a chance a misdemeanor citation could be ordered. I think that’s extremely problematic.”

The committee approved the amended ordinance unanimously. It now goes before the City Council. It must be adopted by June 20.

Notable

Former Boise Mayor David Bieter has been elected to the Idaho Trust Bank board of directors.

Bieter, who was mayor from 2004 until January, joined Gardner Co. in March as a project manager.

“Dave Bieter established a national reputation for excellent leadership and proactive management in local government, and we are excited to have his know-how and guidance in strengthening an already outstanding board,” Idaho Trust Bank CEO and President Thomas Prohaska said in a news release.

Kate Talerico
Idaho Statesman
Kate reports on growth, development and West Ada and Canyon County for the Idaho Statesman. She previously wrote for the Louisville Courier-Journal, the Center for Investigative Reporting and the Providence Business News. She has been published in The Atlantic and BuzzFeed News. Kate graduated from Brown University with a degree in urban studies.
Get unlimited digital access
#ReadLocal

Try 1 month for $1

CLAIM OFFER