Business

A big ‘boutique’ hotel. Townhouses, apartments. A fire station. What’s coming near you

The latest proposed developments, other construction projects and new businesses around the Treasure Valley:

Meridian

Ball Ventures Ahlquist plans to develop a 17-acre commercial project called Victory Commons at the corner of Victory Road and South Meridian road that would include retail, medical offices — including urgent care — and office space, as well as a potential self-storage and car wash space there, replacing the Victory Green nursery.

Meridian-based developer Ball Ventures Ahlquist is looking to build a commercial development at the corner of Meridian and Victory Roads.
Meridian-based developer Ball Ventures Ahlquist is looking to build a commercial development at the corner of Meridian and Victory Roads. Ball Ventures Ahlquist

The West Ada School District plans to build a new Fine Arts Academy for students in grades 6 through 12 at 915 E. Central Drive, near the Meridian Road exit of Interstate 84. The district seeks to rezone 19 acres from light industrial to general commercial. The project would also involve a new parking lot for Idaho State University and an eventual expansion of the District Services Center.

The West Ada School District hopes that this 19-acre parcel off  Interstate 84 will be home to a new Idaho Fine Arts Academy for middle and high school students.
The West Ada School District hopes that this 19-acre parcel off Interstate 84 will be home to a new Idaho Fine Arts Academy for middle and high school students. Provided by West Ada School District

The Ada County Highway District has negotiated the purchase of 7.2 acres on Franklin Road for $2.05 million for a future yard site and possible new Traffic Management Center site. The parcels are 3.9 acres at 4330 E. Franklin Road in Meridian and 3.4 acres at 12590 W. Franklin Road in Boise.

Brighton Corp. applied to build an assisted living building at Century Farm, the residential subdivision off Eagle Road between Amity and Lake Hazel Roads in South Meridian.

Boise

Cottonwood Park’s new accessible playground has opened. It is designed for users of all ages, abilities and stages of development. Features include climbing walls, swings and a 100-foot zipline.
Cottonwood Park’s new accessible playground has opened. It is designed for users of all ages, abilities and stages of development. Features include climbing walls, swings and a 100-foot zipline. Provided by the city of Boise

City leaders dedicated an accessible playground lnext to Pioneer Elementary School in West Boise. It aims to offer multisensory experiences for users of all ages, abilities and stages of development. The playground, located in Cottonwood Park at 4350 N. Colonial Park Way, has climbing walls, binoculars, swings, a zipline and soft surface fall material.

Saddam’s Barber Shop leased 1,056 square feet of retail space at 1320 S. Broadway Ave., according to Thornton Oliver Keller Commercial Real Estate.

Bank of Jackson Hole, based in Jackson, Wyoming, and doing business as Alpine State Bank, is seeking permission from the Federal Reserve Board to establish a branch at 802 W. Bannock St.

Kuna

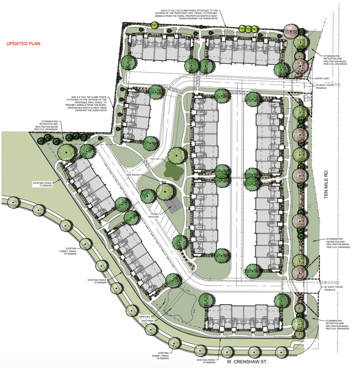
A Nevada-based firm called Epic Development wants to build about 60 new townhouses in Kuna off of Ten Mile Road.
A Nevada-based firm called Epic Development wants to build about 60 new townhouses in Kuna off of Ten Mile Road. City of Kuna

William Mathews and Jarron Langston of Epic Development in Nevada request to rezone 4 acres in off of Ten Mile Road between Deer Flat and West Ardell Road from neighborhood commercial to high density residential. There, it hopes to build a subdivision called Athleta that would about 60 townhouses.

The Athleta subdivision in Kuna would include about 60 attached townhouses.
The Athleta subdivision in Kuna would include about 60 attached townhouses. Epic Development LLC

The Kuna Rural Fire District is looking to rezone 2 acres from agricultural to public zoning at the southwest corner of Cloverdale and East Kuna Roads, where it plans to build a new fire station.

Caldwell

Caldwell is considering creating a new urban renewal district in the northern part of the city that would include 895 acres bordered to the west by Farmway Road, to the south by Boradside Lane and Chicago Street, to the east by the Riverside Canal and to the north approximately by Idaho 44.

The city estimates that over the life of the urban renewal district, the city could make $24 million in roadway improvements, of which $13 million would be covered by the urban renewal district.

Among the 895 acres, the district includes about 140 acres owned by Rambo Crusting Co., 24 acres of land owned by Canyon County, 81 acres owned by the Housing Authority of Caldwell, and 54 acres owned by Harris Mink Farms.

Nampa

Catie Kesterson is opening Wildflower Salon, a new nail salon in downtown Nampa, at 1315 3rd St. S.

Garden City

A public hearing will be held on The Boardwalk project, a project by Las Vegas-based developer Michael Talbott that would bring a boutique hotel and hundreds of apartments to Garden City, at 6 p.m. on Monday, Nov. 4, at Garden City City Hall.

Notable

The median price of a single-family home in Ada County fell to $349,994 in September, after setting a record $355,000 in August, according to the Intermountain Multiple Listing Service. In Canyon County, where a record $254,900 was also set in August, the median price declined to $250,000.

A total of 916 homes were sold in Ada County during the month, 456 in Canyon County.

Jacksons Food Stores will acquire 14 Gem Stop convenience stores, which will be operated under the ExtraMile brand. The Gem Stops are located in Boise, Nampa, Caldwell, Middleton, Marsin, Riggins and La Grande.

All employees will be retained, according to a news release.

The rebranding is similar to one that several Jacksons stores underwent earlier this year.

Kate Talerico
Idaho Statesman
Kate reports on growth, development and West Ada and Canyon County for the Idaho Statesman. She previously wrote for the Louisville Courier-Journal, the Center for Investigative Reporting and the Providence Business News. She has been published in The Atlantic and BuzzFeed News. Kate graduated from Brown University with a degree in urban studies.
Get unlimited digital access
#ReadLocal

Try 1 month for $1

CLAIM OFFER