Business

Boise preservationists want to save this Art Deco building. Its owner has other plans

Preservationists are upset that the owners of an Art Deco apartment building on the west side of Downtown Boise have marked the 1937 building for demolition.

Creed Herbold and his wife, Ann Swindell, have applied to replace the three-story Travis Apartments at 1620 W. Bannock St. with a five-story building featuring 22 high-end condominiums and offices. As a first step, they have submitted an application to change the zoning on the nearly third-of-an-acre parcel from general commercial to residential office.

“We are very concerned and disappointed that Creed and his wife would consider demolition of the Travis Apartments,” Paula Benson, president of Preservation Idaho, wrote in an email to the Idaho Statesman. “His proposal to remove affordable housing in the downtown core and replace it with high-end rentals moves the city away from its goal of retaining a diversity of housing costs.”

Herbold said he considered renovating the building, which has 10 one-bedroom apartments with between 500 and 750 square feet each, but decided against it. The electrical system is old and the building occupies only about 20 percent of the parcel’s area.

“It doesn’t fit the standard that Boise has laid out in their desires for increasing density,” Herbold said by phone.

Thesdie Frogue Feltner, owner of Feltner Memorial Monuments Co., had the building built for $20,000, said Dan Everhart, an outreach historian with the Idaho State Historic Preservation Office. While the flat-roofed stucco building is not complex, full-height stepped pilasters — rectangular, column-like ornaments — wrap each corner and flank the central entrance, he said.

That architectural motif is repeated between each of the upper walls with stepped embellishments emphasizing the vertical characteristics of the Art Deco style, he said.

Art Deco emerged in the 1920s in Paris in arts, crafts and architecture and gained popularity in the 1930s. The Chrysler Building and Rockefeller Center in New York were built in Art Deco style.

Visual Arts Cork, an Irish online arts encyclopedia, writes: “The art deco style, which above all reflected modern technology, was characterized by smooth lines, geometric shapes, streamlined forms and bright, sometimes garish colours. Initially a luxury style (a reaction against the austerity imposed by World War I) employing costly materials like silver, crystal, ivory, jade and lacquer, after the Depression it also used cheaper and mass-produced materials like chrome, plastics, and other industrial items catering to the growing middle class taste for a design style that was elegant, glamorous and functional.”

At the time of its construction in 1937, the Travis Apartments offered modern conveniences that were relatively uncommon, like a parking garage for each of its ten apartments.
At the time of its construction in 1937, the Travis Apartments offered modern conveniences that were relatively uncommon, like a parking garage for each of its ten apartments. Darin Oswald doswald@idahostatesman.com


Two garages behind the Travis Apartments provide parking. Providing off-street, covered parking for each of the 10 apartments was unusual for its time but reflected the growing importance of the automobile, Everhart said.

Early occupants were generally young married professionals without children. In 1939, tenants included the general manager of a stock company, the treasurer of a heating coal distributor and two executives at Idaho Power. At the height of World War II, seven of the 10 units were rented by U.S. Army personnel.

It’s lost to history why they were called the Travis Apartments, Everhart said.

Herbold’s father, LaMonte Herbold, bought the property in 2002, according to the Ada County Assessor’s Office. Creed Herbold became the owner in 2008.

The city has long advocated for high-density housing in Downtown as a way to handle growth. Density allows more economically efficient use of land, roads, utilities and services and avoids consuming large parcels of undeveloped land. Herbold’s property is located near the western edge of the city’s Downtown Planning Area, two blocks southwest of the Albertsons store at 16th and State streets.

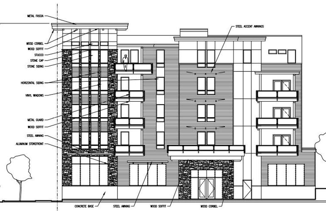
A drawing shows the design for a proposed five-story building with ground-floor offices and upper condominiums at 1620 W. Bannock St. The building would replace the Art Deco Travis Apartments building, built in 1939.
A drawing shows the design for a proposed five-story building with ground-floor offices and upper condominiums at 1620 W. Bannock St. The building would replace the Art Deco Travis Apartments building, built in 1939. The Architects Office via the city of Boise

The residential office zoning the couple seeks provides a “buffer between high intensity commercial areas and adjacent higher density residential areas,” according to Blueprint Boise, the city’s comprehensive plan.

“Redevelopment of the property as proposed is both prudent and sensible and assists the city [to] obtain additional housing stock in close proximity to shopping, jobs and existing transit,” Tamara Thompson of The Land Group, an Eagle land use consulting company, wrote in a letter included with the application.

Herbold said neighbors support his plans.

“We met with the neighborhood association and other than losing that type of a building, they were excited about residences and increasing the density in the neighborhood,” he said.

Still, Benson, from Preservation Idaho, said sending a “perfectly usable building to the landfill” works against Boise’s goal of moving toward greener city practices and policies.

She said Herbold’s contention that the building is old and past repair is unsupported by discussions with people knowledgeable about the rehabilitation of historic buildings.

“We work to be reasonable about preservation and don’t believe that you have to save every building,” Benson wrote. “However, when you have a building that is both historically and architecturally significant and is of a style, Art Deco, that is fairly rare in Boise, that is worth preserving.”

Art Deco buildings in Boise

The use of an Art Deco building for residences is unusual, Everhart said. Most often, it’s employed for commercial and institutional buildings. The old Idaho National Guard Armory on Reserve Street in Boise was done in the Art Deco style, along with North Junior High in Boise and the Gem County Courthouse in Emmett.

“I think the building has charm, even if others disagree,” Everhart said. “We try to think about things from a perspective outside of simple aesthetics. Style and beauty is in the eye of the beholder. Some people’s idea of an attractive building is someone else’s idea of an unattractive building.”

The Idaho State Historic Preservation Office doesn’t take a position on whether a landowner should preserve an old building but tries to identify factors that might make a building significant. That can include the historical context and trends of the time a building was built.

“Moving away from the rooming house, having independence, having your car, all of that is embodied in this building,” he said. “Even if it’s not someone’s cup of tea architecturally, there’s more to it than that. It’s also about the story it tells.”

Benson said Preservation Idaho has put Herbold in touch with a developer who redevelops historic buildings.

“Creed needs to do much more homework on his building and explore other options for providing additional residential units on that large lot before he demolishes the Travis Apartments,” Benson wrote. “We hope the city will hold him accountable for doing both those things.”

A hearing before the Boise City Planning and Zoning Commission has been scheduled for 6 p.m. Monday, May 6, at City Hall, 150 N. Capitol Blvd.

Read Next
Read Next
Read Next
Read Next

This story was originally published April 6, 2019 at 7:24 AM.

John Sowell
Idaho Statesman
Reporter John Sowell has worked for the Statesman since 2013. He covers business and growth issues. He grew up in Emmett and graduated from the University of Oregon. If you like seeing stories like this, please consider supporting our work with a digital subscription to the Idaho Statesman.
Get unlimited digital access
#ReadLocal

Try 1 month for $1

CLAIM OFFER