Canyon County

Fast-growing Caldwell says no to 500+ houses, apartments. This is why

A rendering of what an apartment building would look like in Trilogy Development’s proposed Escalon Park subdivision at the eastern corner of Idaho 26 and Middleton Road. The Caldwell CIty Council denied the proposal.
A rendering of what an apartment building would look like in Trilogy Development’s proposed Escalon Park subdivision at the eastern corner of Idaho 26 and Middleton Road. The Caldwell CIty Council denied the proposal. Trilogy Development via city of Caldwell

Caldwell is no stranger to big new subdivisions.

It’s getting so many, in fact, that city leaders worry that too little commercial development is happening on the east side of town to support all the new residents. What Caldwell needs, its top planner says, are more grocery stores. Without them, new residents may have to drive to Nampa to shop.

The imbalance was top of mind Monday when the City Council denied a development that would have brought 528 homes to east Caldwell.

At issue was Escalon Park, a proposal by Boise’s Trilogy Development that would have added a mix of large single-family homes with nearly three dozen apartments.

Trilogy proposed 392 single-family homes and 34 apartment buildings with four units each — 136 apartments in total — on 118 acres of farmland at the southeastern corner of Idaho 26 and Middleton Road.

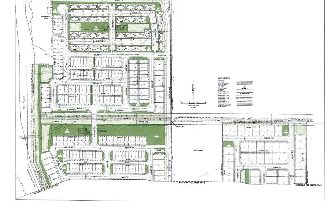
A map of Escalon Park, a proposed 528-home subdivision in east Caldwell. The developer, Trilogy Development, aimed to mix apartment buildings with single family homes. The map shows Santa Ana Avenue running from bottom to top. Santa Ana Avenue would be extended from Linden Road to Idaho 26. Idaho 26 is not shown on the map, but it would run along the top of the photo. Middleton Road runs along the left side of the map.
A map of Escalon Park, a proposed 528-home subdivision in east Caldwell. The developer, Trilogy Development, aimed to mix apartment buildings with single family homes. The map shows Santa Ana Avenue running from bottom to top. Santa Ana Avenue would be extended from Linden Road to Idaho 26. Idaho 26 is not shown on the map, but it would run along the top of the photo. Middleton Road runs along the left side of the map. Trilogy Development via city of Caldwell


The proposal was denied after a City Council workshop earlier in the evening, where Planning and Zoning Director Jerome Mapp warned council members that Caldwell was losing commercial properties.

Mapp said the council had been approving multifamily development on areas that were designated as mixed-use areas, intended for both commercial and residential development.

“We don’t have any grocery stores on the north side of the freeway,” Mapp said. “We don’t have any grocery stores by highway 20/26.”

Mayor Garret Nancolas said the council had been approving multifamily residential developments because that is what residents need.

“One of the reasons why commercial property is getting consumed with high density is because we need more R-3,” Nancolas said. R-3 is a zone intended for higher density residential development that is close to retail, restaurants and other commercial properties.

Mapp agreed and said it was important that the city work with developers to add multifamily development to the city, just not in “prime commercial areas.”

Mapp said the planning staff would soon propose prohibiting multifamily in a zone identified as commercial in the city’s comprehensive plan, unless the developer had a special use permit. He suggested having defined residential neighborhoods and defined commercial neighborhoods. Mapp also suggested that the staff should better define mixed-use as commercial and residential.

“I am really concerned about grocery stories,” said Mapp. “We have Walmart, Winco, Fred Meyer chains coming into Caldwell, but we find that going east we don’t have that opportunity right now. Where they are going is to Nampa.”

With Mapp’s words fresh on the council members’ minds, they had the public hearing for Escalon Park.

Trilogy Development requested a planned unit development for Escalon Park, so the council had to determine whether the project met two out of five criteria:

  • The development offers a variety of housing and building types.

  • The development promotes mixed use projects.

  • The development provides a layout which preserves natural topography and geological features.

  • The land parcel is constrained or limited by some obstacle or condition.

  • The development encourages infill development.

Debbie Root, senior city planner, said she was skeptical that Trilogy’s development met two of the criteria. She admitted that it met the first one, because it offered a mix of single-family homes and apartments.

Root said it was up to council members whether they defined mixed-use as a mix of just residential uses or a mix of commercial and residential units. If they believed it was a mix of commercial and residential, she said the project would not meet two out of the five criteria.

Jane Suggs, a planner with Gem State Planning, represented Trilogy. She tried to convince council members that the mix of residential units alone made the project a mixed-use project.

“There is a mix of lot sizes and home styles,” Suggs said. “There will be enters, buyers, singles, and families. This is what you want when you are developing a community.”

Three of the four council members who attended Monday’s meeting agreed with Root. Councilman John McGee was the only dissenting vote.

The decision is expected to be finalized at the council’s next meeting on Tuesday, Sept. 7, Nancolas said to the audience. He said Trilogy has 28 days from then to appeal.

Rachel Spacek covers western Ada and eastern Canyon counties. Have a story suggestion or a question? Email Spacek at rspacek@idahostatesman.com.

Read Next
Read Next
Rachel Spacek
Idaho Statesman
Rachel Spacek is a former reporter covering Meridian, Eagle, Star and Canyon city and county governments for the Idaho Statesman. 
Get unlimited digital access
#ReadLocal

Try 1 month for $1

CLAIM OFFER