Business

Downtown Boise YMCA sneak peek: See what the future may hold

For many, the future demolition and reconstruction of the downtown Boise YMCA is one of the most anticipated developments in town.

Built in 1968, the current downtown YMCA location at 1050 W State St. has aged considerably as it welcomed a swelling Boise population year after year.

Even with expansions in 1985 and 1999, a 2017 study found the facility still needed a $20 million investment to sustain operations, according to prior Idaho Statesman reporting. Those upgrades would not have addressed capacity limits or accessibility problems.

Instead, the YMCA imagined a fresh future and fresh start by joining forces with the city’s urban renewal agency, Capital City Development Corp., and developers Edlen & Co., deChase Miksis and Elton Cos.

This rendering shows what the future YMCA may look like looking south.
This rendering shows what the future YMCA may look like looking south. Cushing Terrell

That future would see the construction of a new YMCA as a focal point in a now nearly $200 million project that would build over 400 new apartments and 30,000 square feet of commercial space off State Street.

The plan calls for demolishing and moving the YMCA one block south, to the northern portion of 1010 W. Jefferson St., where a parking lot and vacant building now sit.

Developers are planning to redevelop multiple blocks of land in downtown Boise just south of Boise High School, which is just outside of this south-looking photo below the lower left corner. The project would move the YMCA, center left, a block south across State Street, and it would construct two buildings, one 15-story and the other seven-story, for hundreds of apartments and ground-floor businesses.
Developers are planning to redevelop multiple blocks of land in downtown Boise just south of Boise High School, which is just outside of this south-looking photo below the lower left corner. The project would move the YMCA, center left, a block south across State Street, and it would construct two buildings, one 15-story and the other seven-story, for hundreds of apartments and ground-floor businesses. Darin Oswald doswald@idahostatesman.com

Developers would wait to demolish the current YMCA until they finish its replacement, so members could have continuous service.

Permit applications and public documents highlight just what the new YMCA might look like.

According to an April design review application, the proposed building would encompass 101,600 square feet on less than an acre. It would include a basement and three full floors, with a fourth floor to be added later.

The future downtown Boise YMCA would have three stories devoted to fitness and activity space with the possibility to add a future fourth floor.
The future downtown Boise YMCA would have three stories devoted to fitness and activity space with the possibility to add a future fourth floor. Cushing Terrell

The Y would include open fitness areas as well as several studios, a gymnasium, a swimming pool complex and office-administration spaces, according to the application. There would also be clinical spaces for a health partnership.

The site would include 353 shared parking spaces and 695 off-site parking spaces.

According to a letter of intent from Montana-based design and architecture firm Cushing Terrell, the building would be centered around transparency and “activity visibility.”

“A sweeping entry canopy and expansive glazing create a primary entry beacon, anchoring the northwest corner and welcoming visitors,” according to the letter.

These floor plans from Montana-based design and architecture firm Cushing Terrell shows how the future YMCA could divide activity spaces between the first, at top, and second floors, at bottom.
These floor plans from Montana-based design and architecture firm Cushing Terrell shows how the future YMCA could divide activity spaces between the first, at top, and second floors, at bottom. Cushing Terrell

After entering the building, partner spaces would be located on the right-hand side, while a kids-adventure and child-watch area would be on the left-hand side near the reception and administrative offices, according to site plans.

A meeting room, kitchen and co-working space, caregiver room, lockers, showers and changing rooms would also be on the first floor. The rest of the floor would be devoted to a lap swimming pool and a recreation swimming pool with a steam room and sauna.

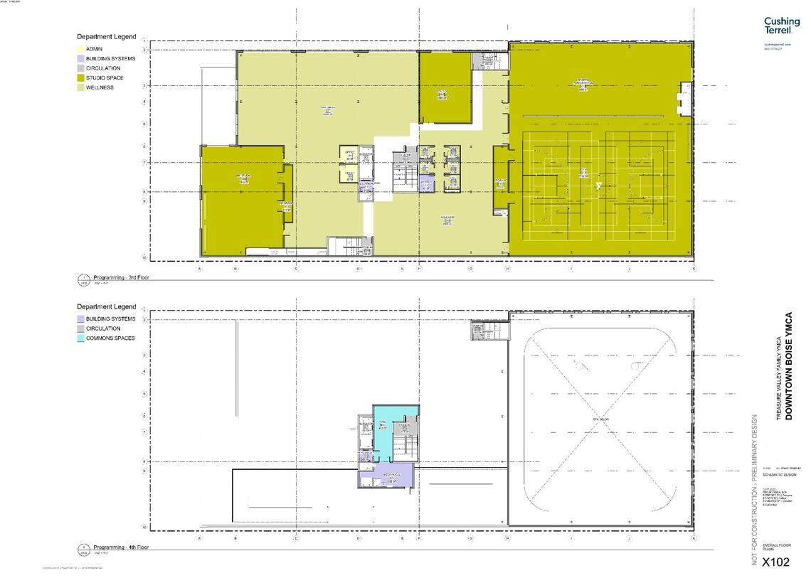
The third floor of the future YMCA would include a gym, sports performance space and wellness studios. The fourth floor, at bottom, could be developed into further activity spaces.
The third floor of the future YMCA would include a gym, sports performance space and wellness studios. The fourth floor, at bottom, could be developed into further activity spaces. Cushing Terrell

The second floor would be devoted to studio and wellness spaces, locker rooms, a smaller gym and a 5,000-square-foot space for the health partnership.

The third floor would be nearly entirely devoted to studio, wellness and gym spaces.

Read Next
Read Next
Read Next
Nick Rosenberger
Idaho Statesman
Nick Rosenberger is the Idaho Statesman’s growth and development reporter who focuses on all things housing and business. Nick’s work has appeared in dozens of newspapers and magazines across the Pacific Northwest. Support my work with a digital subscription
Get unlimited digital access
#ReadLocal

Try 1 month for $1

CLAIM OFFER