Business

9- and 7-story buildings on St. Luke’s main campus. ‘High-end’ apartments. Coming near you

The Bridge at the Village would be connected to the Village at Meridian with a bridge as shown in this rendering.
The Bridge at the Village would be connected to the Village at Meridian with a bridge as shown in this rendering. Center Cal

The latest proposed developments, housing and other construction projects, and new businesses around Idaho’s Treasure Valley:

Boise

Scott Straubhar of Hummel Architects has requested a list of neighbors to contact for a meeting about two new downtown buildings, one nine stories tall, the other seven.

The proposed St. Luke’s North Tower and the 1st Street Medical Office Plaza at 190 E. Bannock St. would be on the downtown campus of the St. Luke’s Health System’s flagship hospital.

According to the application:

  • “The new north tower will be located on the vacated Jefferson Street right-of-way and the now-cleared city block bounded by Avenue B, Fort Street, and 1st Street. The structure will be nine stories above grade and two stories below.”
  • “The new 1st Street MOP will span the roadway as it connects the Northwest Parking Garage / Central Utility Plant to the new North Tower. The building will be seven stories tall,” including six stories of medical clinics.

A Venice, California, artist has been chosen to create public art in a new park at 521 W. Grove St. downtown.

Cliff Garten’s studio will be paid $300,000 to work with city leaders planning the park across the street from the Basque Block.

The art project is funded in partnership with Boise’s urban renewal agency, the Capital City Development Corp. It is intended to focus on minority communities with history in Boise, according to an overview of the project.

The outline of the project emphasizes that Boise is the “traditional, ancestral, and unceded territory” of multiple American Indian tribes, as well as a former Chinatown and the close proximity to the Basque block.

Cliff Garten Studio has completed numerous public art projects in cities around the country, according to its website.

“This is a great step in the process of getting a really transformational piece of art here in this space at 6th and Grove,” Mayor Lauren McLean said at the City Council meeting Tuesday, June 27, “to help it become yet another magnet in the city where folks want to gather and hang out.”

The City of Boise envisions a new park at 6th and Grove Streets downtown, across the street from the Basque Block. Cliff Garten Studio, an artist in Venice, California, has been selected to design a public art project at the new park. The city has already outlined potential designs for the park.
The City of Boise envisions a new park at 6th and Grove Streets downtown, across the street from the Basque Block. Cliff Garten Studio, an artist in Venice, California, has been selected to design a public art project at the new park. The city has already outlined potential designs for the park. City of Boise

Inspire Academics leased 6,067 square feet of office space at 9550 Bethel Court, according to TOK Commercial.

Inspire Academics, also known as Inspire Connections Academy, is an online public school for students kindergarten through high school. The school had 1,392 students enrolled in 2022, according to the Idaho Department of Education.

Kids Empire leased 11,176 square feet of retail space in the Boise Towne Square Mall at 350 N. Milwaukee Street, according to TOK Commercial.

The company runs indoor play centers across the country. Other play centers include climbing areas, slides, ball pits, mazes and more.

Kids Empire also hosts birthday parties.
Kids Empire also hosts birthday parties. Kids Empire

Wes Steele, owner of Steele Architecture, has filed a request for a permit to construct a building for a wholesale door distributor at 2667 S. Victory View Way, east of South Maple Grove Road.

The 34,288-square-foot light-industrial building would house D&A Door, according to the application.

Jon Flores, of JZW Architects in Utah, has filed a request for a permit for Crumbl Cookies at 3629 S. Federal Way, northwest of a Zamzows store.

Meridian

The California developer that built and owns The Village at Meridian is moving ahead with its big luxury-living apartment complex adjoining the shopping center.

The Bridge Apartments will cost an estimated $185 million, CenterCal Properties LLC said in a filing with the city of Meridian.

The Bridge is set to rise on 6.5 acres at 3210 E. Longwing Lane on The Village property’s west side.

“The Bridge Apartments will bring 549 high-end quality units to the Village at Meridian along will ground-floor retail that extends the lifestyle and character of the shopping center towards Eagle Way,” the filing said. “The retail will have notable stores along with attractive restaurants anchoring the corners. The residential portion will have an amenity package that is unmatched in this market with a full-sized pool, large spa, basketball/tennis court, state-of-the-art gym, and fully equipped villa.

“All of these amenities sit atop the roof to take advantage of expansive views of Treasure Valley. The residences are split between two buildings with a connector bridge spanning over Longwing Drive. The south building will wrap a 599-stall parking garage, which serves both residential and retail patrons.”

The filing was first reported by BuildZoom.

The Bridge at the Village would be connected to the Village with a bridge as shown in this rendering.
The Bridge at the Village would be connected to the Village with a bridge as shown in this rendering. Center Cal
Center Cal, the developer, says The Bridge would help ease the Treasure Valley’s housing shortage.
Center Cal, the developer, says The Bridge would help ease the Treasure Valley’s housing shortage. Center Cal

Roaring Springs Water Park said the new features it added this summer are just the first of a seven-phase expansion it plans to roll out over the next decade.

The water park wants to add a new major water attraction every two to three years, growing by 40% in the next 10 years, according to a news release.

With the latest expansion, Roaring Springs now has more than 20 water attractions.

Roaring Springs added a play structure for kids called Camp IdaH2O, featuring a 650-gallon potato tipping bucket.
Roaring Springs added a play structure for kids called Camp IdaH2O, featuring a 650-gallon potato tipping bucket. Roaring Springs Water Park

The additions to the water park this summer include a whitewater-themed wave river, an adventure pool, and a play structure for kids with a 650-gallon potato tipping bucket. The attractions feature Idaho wildlife and icons.

“It’s truly a celebration of everything we love about the Northwest,” Tiffany Quilici, marketing director, said in the release.

Roaring Springs also added new food and drink venues and more cabanas.

One of the three new attractions is an adventure pool with floating beaver, log and fish-shaped floats that guests can traverse using an overhead ropes course.
One of the three new attractions is an adventure pool with floating beaver, log and fish-shaped floats that guests can traverse using an overhead ropes course. Roaring Springs Water Park

Black Rock Coffee Bar is opening a new location in southeast Meridian.

The store is situated next to Rite Aid at the intersection of East Victory and South Eagle roads. It’s the Portland-based company’s third location in Meridian and sixth in the Treasure Valley.

A grand-opening celebration with free 16-ounce drinks served all day starts at 5 a.m. Friday, June 30, at 3300 East Victory Road.

The store has a drive-thru and indoor seating.

A Meridian church plans an expansion with an estimated $10.8 million price tag.

Rockharbor Church, 6437 N. Treehaven Way in Northwest Meridian, said in a filing with the city that it plans a nearly 45,000-square-foot addition to its church. The filing was first reported by BuildZoom.

Conger Group, a real estate development firm in Boise, wants to build an apartment complex in South Meridian.

The Stapleton Apartments would consist of 19 town house-style units among five two-story buildings, according to a filing with the city. Each of the units is planned to have two or three bedrooms and over 1,200 square feet.

The Conger Group previously garnered approvals for up to 28 apartments for the project, but decided during the design phase to reduce the number of units and increase the square footage of each unit. The company said it determined the area would be better served with larger apartments.

The complex would be located at the northwest corner of South Meridian Road and West Harris Street.

The Meridian Planning and Zoning Commission is scheduled to hear the proposal at 6 p.m. Thursday, July 20, at Meridian City Hall.

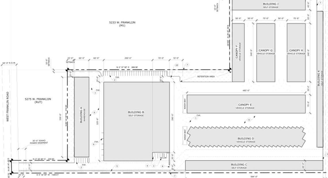
Steve Thiessen, of Silvercreek Realty Group, wants to build a business center with an industrial warehouse and a self-storage business on Franklin Road.

The project would be on 14.5 acres and would include 10 buildings totaling 275,964 square feet, according to the application.

The Silvercreek Realty Group wants to build a 14.5 acre-industrial project near Franklin and Ten Mile Roads.
The Silvercreek Realty Group wants to build a 14.5 acre-industrial project near Franklin and Ten Mile Roads. City of Meridian

“Due to the close proximity to Interstate 84, the Ten Mile and future Highway 16 interchange, light industrial would be an appropriate zone for this parcel,” the application said.

The Meridian Planning and Zoning Commission is scheduled to hear the proposal at 6 p.m. Thursday, July 6, at City Hall.

Blue Frog LLC, a Georgia company that builds dental, optometry and commercial buildings, wants to build a veterinary hospital near the southeast corner of Ten Mile and McMillan roads.

The Milano Animal Care Facility at 3020 W. Milano Drive would have 3,100 square feet and a single story. There would be a wooden fenced area for animals to walk into the hospital and avoid excape or injury, the application said.

The Milano Animal Care Facility would accommodate animals needing wellness check ups, surgeries and x -rays.
The Milano Animal Care Facility would accommodate animals needing wellness check ups, surgeries and x -rays. City of Meridian

The Meridian Planning and Zoning Commission is scheduled to hear the proposal at 6 p.m. on Thursday, July 6 at City Hall.

Brighton Development wants to build 57 town houses on the northwest corner of Ustick Road and Venable Lane.

The Driftwood Subdivision would also include two commercial lots, the application said. The project would be on nearly 5 acres at 870 W. Ustick Road.

Brighton Development’s town houses in the Driftwood Subdivision would include two and three bedroom units.
Brighton Development’s town houses in the Driftwood Subdivision would include two and three bedroom units. City of Meridian

The town houses would be in three- and four unit, two-story buildings, including 13 two-bedroom units and 44 with three bedrooms.

The subdivision would also include a clubhouse, play structure and picnic area, the application said.

The Meridian Planning and Zoning Commission is scheduled to hear the proposal at 6 p.m. Thursday, July 6, at City Hall.

Nampa

TOK Boise, a commercial real estate agency, leased 2,133 square feet at 16150 N. High Desert St., according to Cushman & Wakefield.

This story was originally published June 28, 2023 at 4:00 AM with the headline "9- and 7-story buildings on St. Luke’s main campus. ‘High-end’ apartments. Coming near you."

Rachel Spacek
Idaho Statesman
Rachel Spacek is a former reporter covering Meridian, Eagle, Star and Canyon city and county governments for the Idaho Statesman. 
Ian Max Stevenson
Idaho Statesman
Ian Max Stevenson covers state politics and climate change at the Idaho Statesman. If you like seeing stories like this, please consider supporting his work with a digital subscription. Support my work with a digital subscription
Get unlimited digital access
#ReadLocal

Try 1 month for $1

CLAIM OFFER